2015 Reston Circle, Royal Palm Beach, FL 33411
$699,500
Price
5 3 2,778
Property Type:Single Family Residence
Status:Canceled
Listing ID:R11017254
Year Built:2002
Lot Area:6,273
HOA:254.0
QR Code
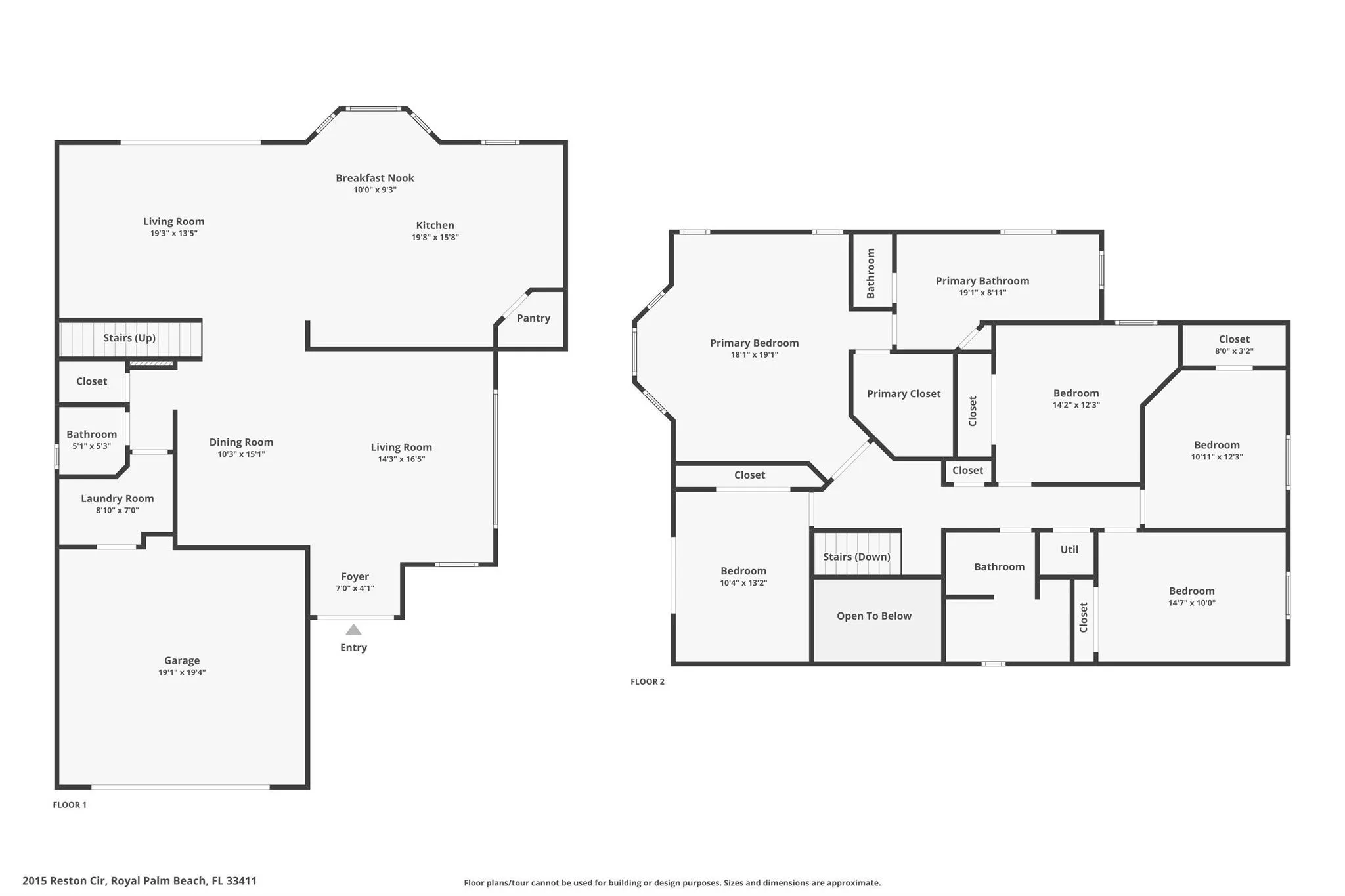
Enjoy fairway views of the 10th hole at Madison Green from this beautiful 5 bedroom, 21/2 bath pool home. Spacious and bright, the kitchen was REMODELED with GE Cafe series stainless steel appliances, quartz countertops and full-overlay cabinets. Soft close kitchen drawers feature dovetail construction. A wine chiller built into the kitchen island. The large, single bowl kitchen sink is next to the window, looking out over the pool. The first floor has an open layout, which is ideal for entertaining friends and family. The spacious master suite has a luxurious double door entry. The remodeled master bath has dual sinks, lady's vanity area, soaking tub, separate shower and private water closet.