288 Kensington Way, Royal Palm Beach, FL 33414
$570,000
Price
5 4 3,033
Property Type:Single Family Residence
Status:Closed
Listing ID:R11068954
Year Built:2003
Lot Area:6,065
HOA:367.0
QR Code
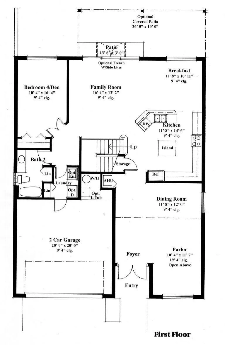
Great School Zone and Great Location for your family!!....This spacious 5-bedroom, 4-bathroom single-family home with 2 car garage is a perfect fit for a growing family. One bedroom with a full bathroom on the first floor is ideal for a multi-generational living. Master suite upstairs is spacious with a sunny sitting room, walk-in closet, double sink bathroom with Roman tub.Spacious layout, A friendly neighborhood, Top-rated schools, Wonderful community with fantastic amenities including a pool and clubhouse, Great Location to the shopping area, highway and airport, Perfect Fit for a growing Family