2480 NW 43rd Street, Boca Raton, FL 33431
$2,450,000
Price
4 5 3,689
Property Type:Single Family Residence
Status:Canceled
Listing ID:R11032978
Year Built:1986
Lot Area:27,007
HOA:1165.0
QR Code
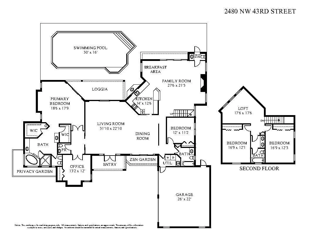
RARE OPPORTUNITY to renovate or build new in Les Jardins, this 4 Bedroom + Office/3 Full/2 Half Bath residence is within 5 minutes of Pine Crest and St. Andrews Schools and located in the Spanish River Public School District. This home is situated on a sprawling .62 +/- Acre with 200+/- feet of frontage on a serene park.The residence is ready for renovation with an open floorplan, high ceilings, and extraordinary natural light. Located w/i 30+/- mins of PBI and FTL Airports, this enclave has a 24-hour manned gate, 1/2 Acre lots, 5 parks, Clubhouse with gym, and 2 Tennis Courts. Les Jardins is close to I 95 and the Tpk ,world-class shopping and dining at Town Center, and the private executive airport. Also listed as LAND MLS RX-11032976SHOWINGS BEGIN AT NOON SUNDAY NOVEMBER 3, 2024.