1500 NE 16th Ave, Fort Lauderdale, FL 33304
$1,795,000
Price
3 3 2,286
Image is not available
Property Type:Single Family Residence
Status:Closed
Listing ID:F10423171
Year Built:2024
Lot Area:8,099
QR Code
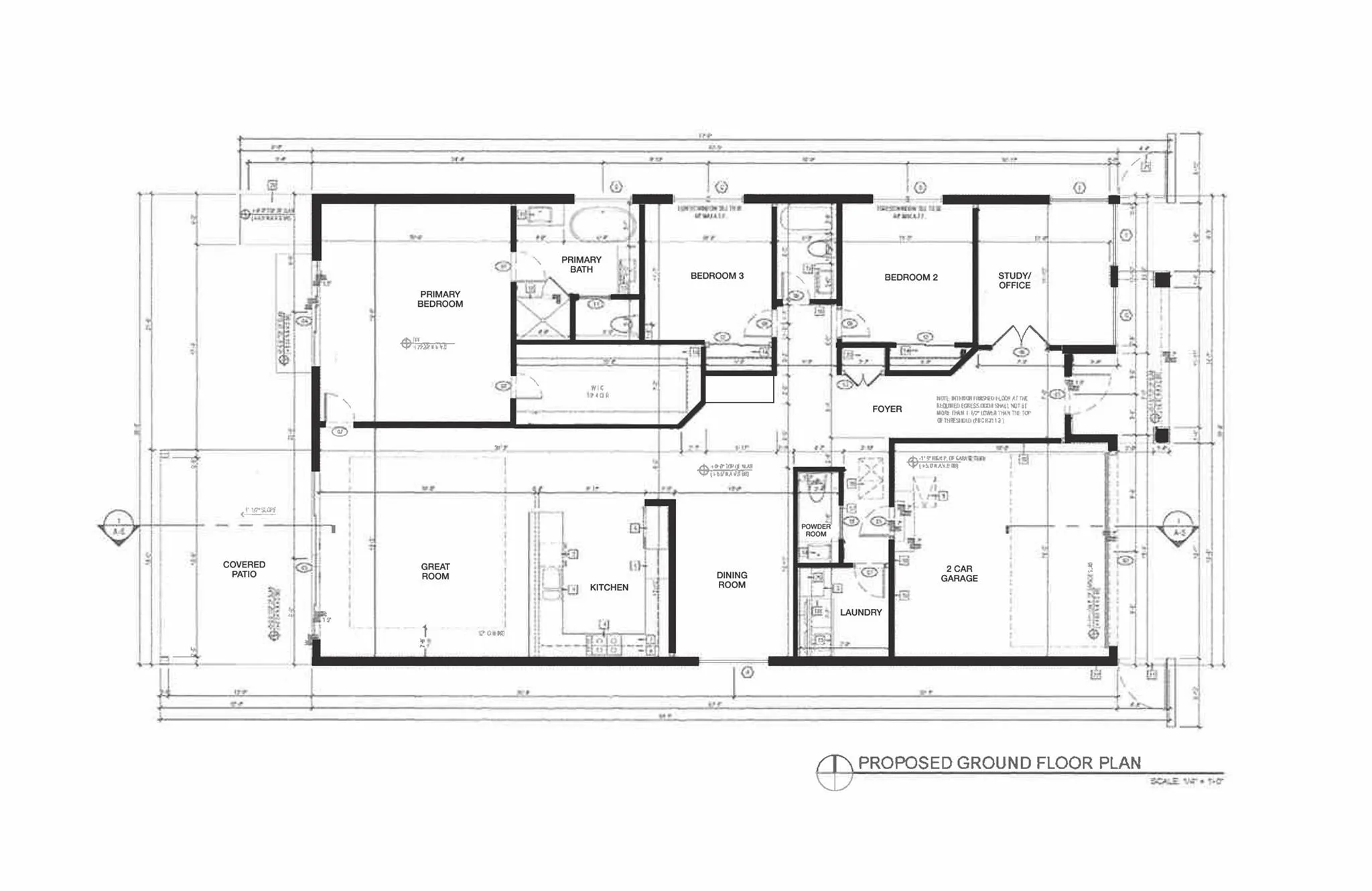
NEW CONSTRUCTION in E. Ft. Lauderdale. Inspired by a transitional contemporary design that a meets all of the requirements of today's modern lifestyle. The bright open floor plan is enhanced by volume ceilings and walls of glass sliding doors combining indoor and outdoor living spaces for the ultimate in tropical living with a covered loggia over looking the pool & large backyard. The gourmet kitchen boasts upgraded appliances with a gas cook top & tremendous counter space, providing the perfect setting for entertaining. Enjoy intimate meals in the formal dining area, relax in the enormous great room or work from home in the designated home office. The primary suite offers a huge walk-in closet and lavish bathroom. Square footage from Developer.
Image is not availableImage is not availableImage is not availableImage is not available