9900 Stirling Rd #300, Hollywood, FL 33024
$25
Price
Property Type:Commercial
Status:Active
Listing ID:F10535122
Lot Area:162,988
QR Code
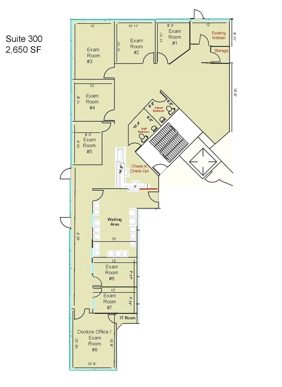
The Centre at Stirling & Palm Medical Of?ce Park, offering 64,436 SF of prime Medical Suites for lease. The two buildings feature ?exible and functional. Suite 300 totaling 2,650 SF, within Building 9900 providing 44,609 SF and Building Two (10000) offering 19,827 SF. This property boasts an on-site restaurant and proximity to numerous major retailers, including Walmart, Publix, CVS, and Walgreens, along with a variety of dining and service amenities. With multiple points of ingress/egress from Stirling Road. Join our Group of Medical Tenants: IVFMD South Florida, Gastro Health Group, Select Medical Physical Therapy, Dental Associates S Broward, Quest Diagnostics, Neurological Testing Centers, Podiatry Health Services, Dolphin Pediatrics. FOR SHOWINGS PLEASE CALL ELIAS PORRAS
Image is not available