119 Lake Arbor Drive, Palm Springs, FL 33461
$2,200
Price
2 2 1,232
Property Type:Townhouse
Status:Closed
Listing ID:R11038608
Year Built:1978
QR Code
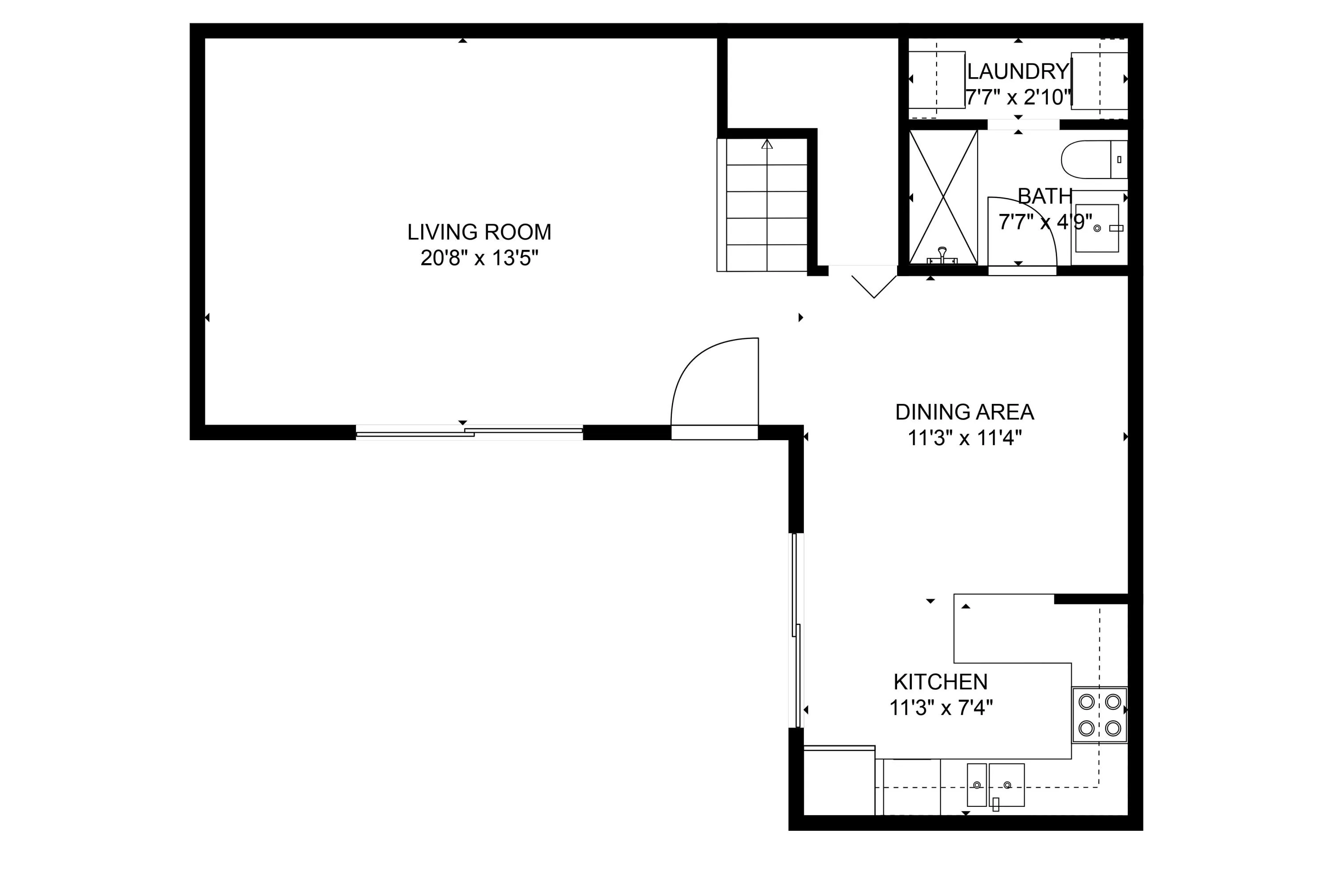
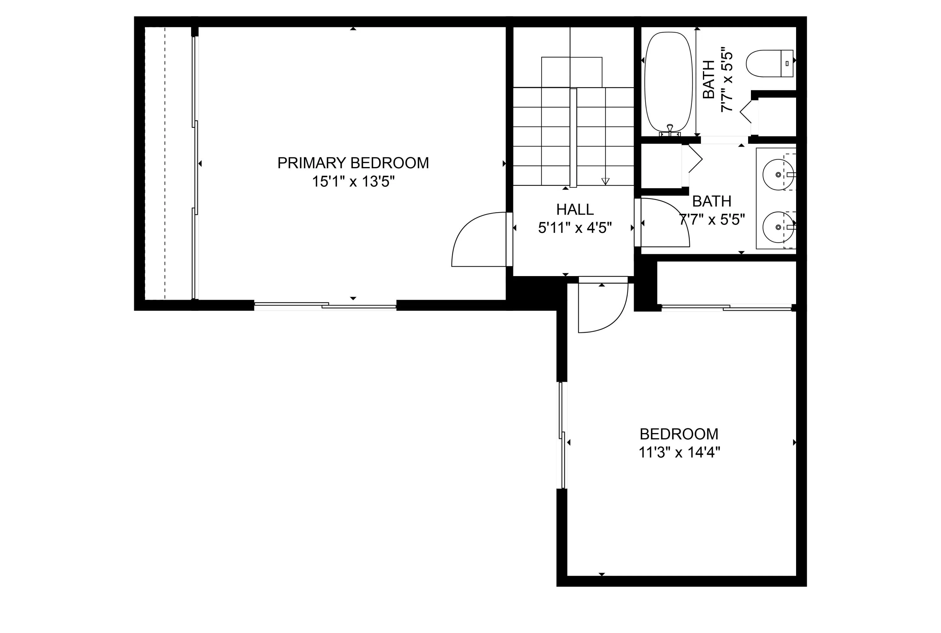
2/2 Townhouse on a private corner available for quick move-in! This spacious townhome is equipped with stainless steel appliances, and full-size washer and dryer. Conveniently located by PBI, shopping centers, and I-95. This unit is nestled on a spacious grassy corner giving you maximum privacy in the community. Quick HOA approval making it easy to move in.